行业知识

IEEE标准中压开关柜要求

2022-11-28 08:35:28 od网页版入口_OD(中国)官方

IEEE标准中压开关柜要求

1.美标开关柜种类

美标开关柜有金属铠装和金属封闭两种结构,金属铠装开关柜对应的标准是C37.20.2,金属封闭开关柜对应的标准是C37.20.3。开关柜有户内和户外式,户外式又分为有维护走廊和无维护走廊两种。

图片关键词

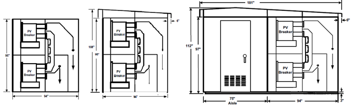
主流产品的宽度是36英寸,即914mm 宽度,也有26英寸的窄型开关柜,柜深一般是94英寸,即2388mm,高度2413mm。开关柜采用双层柜结构,双层断路器或电压互感器、电源互感器手车等组合。

开关柜的外壳种类有A、B、C三种,柜壳防护等级保护公众人士接触的是A类,未经授权和未经培训的人员保护是B类,专业人士保护的是C类。

美标开关柜需要满足燃弧要求的大约占40%,随着安全要求加强以及一些工业客户的要求,抗燃弧需求在不断的增加。对于非燃弧柜,控制、仪表等设备安装在断路器室门上,对于燃弧柜,仪表等安装在中间单独隔室内。


2. 产品特征要求:

所有的带电体封闭在接地的金属隔室内部;

断路器应是抽出式结构或具有等效措施,在母排带电情况下,能安全地将断路器断开;

抽出式断路器不论在工作位置还是断开位置,应有机械锁定机构,在断路器抽出状态下,带电静触头被自动覆盖;

主回路母线导体和连接应全部绝缘;

应提供足够数量的接地和短路设备,以保证电路安全地进线维修工作;

电缆入口应有能防止漏水沿着电缆开关柜内部的措施;

仪表、开关、指示灯、按钮、操作手柄等应有标明其用途和操作位置的耐久铭牌;

所有带电体封闭在接地的金属隔室内,自动活门,主回路母线导体和连接全部绝缘,断路器隔室门可以作为继电器安装板;

低压环形电流互感器套在一次触头盒上,上下各可以套2只,即每相可以有4个电流互感器绕组。这种安装,便于维护和更换。

图片关键词

美标开关柜采用专用的验电、接地手车作为检验回路是否带电,以及回路安全接地的手段,因此不使用接地开关。

美标开关柜净距爬距要求。

图片关键词

美标开关柜对板材厚度等结构有具体要求:

相邻垂直隔室之间、一次回路重要部件的隔板板厚至少3mm;

其它盖板、隔板、柜体和门板板厚至少是1.9mm;

如果安全距离不符合下表要求,柜体开孔应阻止直径大于3.2mm的棒进入,如果距离大于下表要求,则柜壳应阻止直径大于3.2mm,小于13mm的棒进入,


带电体到通风孔的净距要求图片关键词

对于通风网板面积大于320mm2,网板线径需要≥2.1mm,且安装板厚≥2.1mm;网孔面价小于等于320mm2,网板线径需要≥1.3mm,且安装板厚≥1.1mm。


柜顶部通风孔应阻止灰尘进入开关柜。

一次回路隔室间除了必须的通讯开口应没有其它开口;

开关柜表面处理需要经磷化或相同的处理再喷漆,外表面需要抗腐蚀,盐雾试验要求600小时;开关柜喷漆颜色推荐ASTM D1535-97 61号浅灰色。

用于进入进行检查或维护的盖板重量需要小于27kg或面积小于1.12m2,否则需要安装铰链或提升装置。


3. 联锁要求

美标开关柜的机械联锁要求:

a断路器在合闸状态不能摇进摇出

b断路器在没有完全咬合或与带电体有足够的安全距离不能合闸

c只有二次回路断开,才可以接近或断开电互感器熔断器。










首页
产品
新闻
联系